






















Best in class payload due to smarter, lightweight aerial lift design
Unprecedented Lineman Protection at the Platform
Ease of Maintenance: Non-lube bearings, open center system
Details
Product Line: Articulated Telescopic
Truck Industries: Utilities, Forestry & Tree Care, Sign, Light & Traffic, Telecommunications
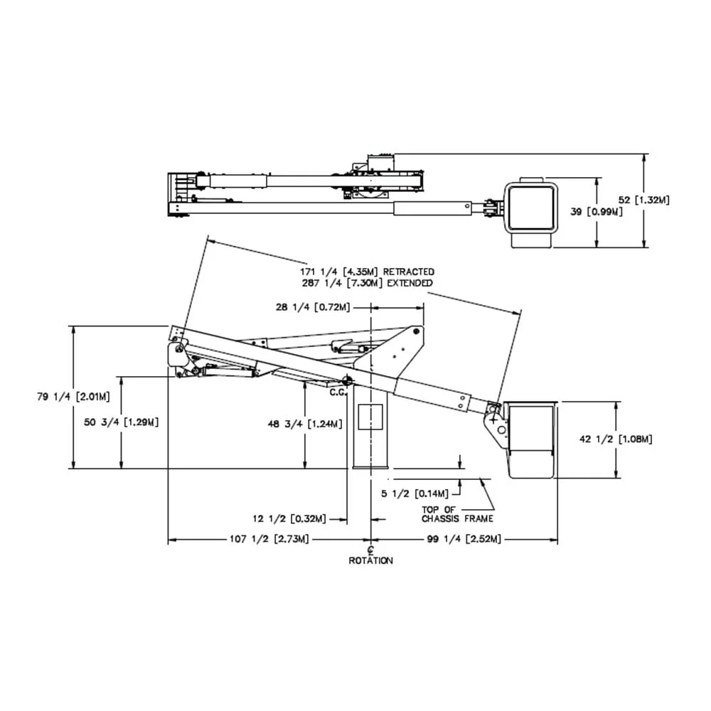
Height to Bottom of Platform: 45 ft
Horizontal Reach: 27.9 ft
Stowed Travel Height: 10.33 ft
Hydraulic Controls: Full Hydraulic | Electric/Hydraulic
Hydraulic Operating Pressure: 2250 psi
Hydraulic Flow Rate: Up to 3 gpm
Hydraulic Filtration: 10 micron return | 100 mesh suction
Hydraulic System Type: Open Center
Hydraulic Power Source: PTO Pump, Belt Drive, DC Drive, or Generator
Lower Boom Articulation: -5° to +90°
Inner/Outer Boom Articulation: -14° to +74°
Inner Boom Extension: 116 in
Upper Boom Insulation Gap: Up to 42 in
Lower Boom Insulation Gap: Up to 12 in
Lower Boom Lift Eye Capacity: Up to 500 lbs
Boom Rotation: 370° Non-Continuous
Have questions about our bucket trucks or need help finding the right solution? Contact us, and a member of our team will get back to you shortly.
No minimum orders — no matter the crew size. Every operator deserves the same level of attention, customization and support.
Fully custom in nine months or less. Configured to match the exact specification your crews need in the field.
A lighter build means more payload, better performance, and access to more job sites.
Expanded parts distribution and a growing mobile service network.
Versalift trucks are built for crews who expect more. We build equipment that’s lighter, smarter, and built around your crews — delivered faster than anyone else in the industry.
Have a question for our product team? Fill out this form and we’ll be in touch within 24 hours or call us at (800) 825-1085