

Details
Product Line: Cable Placer
Truck Industries: Telecommunications
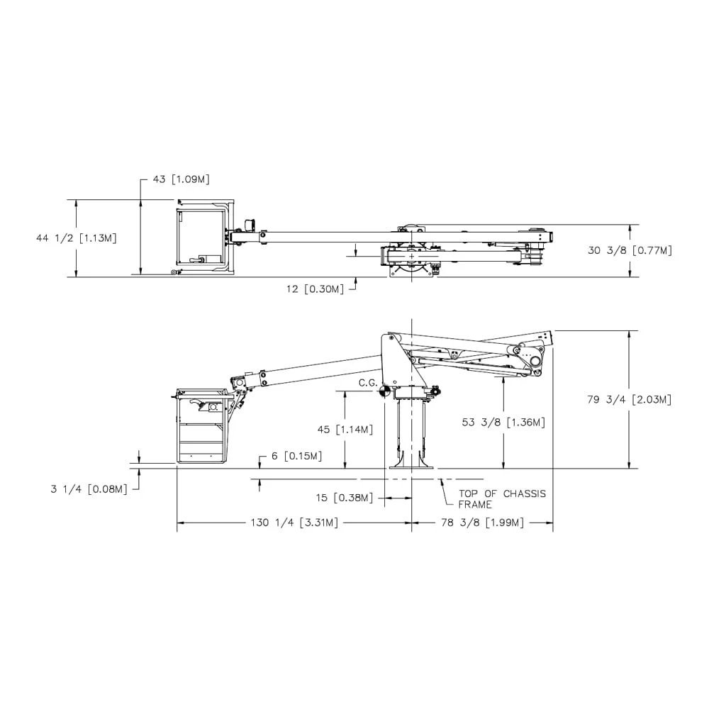
Height to Bottom of Platform: 35 ft 6 in (10.8 m)
Working Height: 40 ft 6 in (12.3 m)
Horizontal Reach: 26 ft 6 in (8.1 m)
Stowed Travel Height: 10 ft 6 in (3.2 m)
Hydraulic Controls: Full Hydraulic
Operating Pressure: 2250 psi (155 bar)
Flow Rate: 2 gpm (8 lpm)
System Type: Open Center
Filtration: 10 micron return | 100 mesh suction
Power Source: PTO Pump
Outer/Inner Boom Articulation: -14° to +74°
Lower Boom Travel: -6° to +90°
Inner Boom Extension: 116 in (2.9 m)
Lower Boom Lift Eye Capacity: 500 lbs
Boom Rotation: 370° Non-Continuous
Upper Boom Insulation Gap: 10 in
Lower Boom Insulation Gap: 12 in
Have questions about our bucket trucks or need help finding the right solution? Contact us, and a member of our team will get back to you shortly.
No minimum orders — no matter the crew size. Every operator deserves the same level of attention, customization and support.
Fully custom in nine months or less. Configured to match the exact specification your crews need in the field.
A lighter build means more payload, better performance, and access to more job sites.
Expanded parts distribution and a growing mobile service network.
Versalift trucks are built for crews who expect more. We build equipment that’s lighter, smarter, and built around your crews — delivered faster than anyone else in the industry.
Have a question for our product team? Fill out this form and we’ll be in touch within 24 hours or call us at (800) 825-1085